富山市 西大泉(小泉町駅) 2階建 1LDK
弊社の建売分譲住宅「ココうち」シリーズをご提案いたします。
単身世帯だけでなく、少人数世帯もお住まいをご検討いただけます。
1LDKですが、間仕切り設置で2LDKにも改装可能です。
境界確定測量済み 安心ですね!
☆ イシサカ地所がご提案する「ココうち西大泉」のこだわり
【GX志向型住宅】
省エネ性能を大幅に高めた住宅です。
【制振装置「evolts B5」採用】
地震によって発生する建物の揺れそのものを和らげる点が特徴です。
【省令準耐火仕様】
火災保険料の軽減などのメリットがあります。
【ガス衣類乾燥機「乾太くん」標準】
お天気に左右されない暮らしへ。
【エコワンハイブリッド給湯器160L】
電気とガスのハイブリッド給湯器。アプリ利用して遠隔操作でお湯はり可能です。
【HEMS導入】
家庭内の電気機器の使用量や稼働状況をモニター画面で見える化し、消費者が自らエネルギーを管理するシステムです。
☆ZEH水準(ZEH Oriented)取得 ⇒ 高断熱と高気密化により、一年を通して室温が安定し、快適な住環境を実現できます。お部屋間の温度差が少なくなるため、ヒートショックリスクを軽減できます。
まだまだこだわりは数多く、これだけではお伝えしきれません!
<担当者より>
設計段階からワクワクが止まらず、心待ちにしていたお家が遂に完成いたしました。
2階リビングなどこだわりのあれやこれやを時間の許す限りご説明いたします。いえ、させてください!!
イシサカ地所のココだけのお家、「ココうち西大泉」の特別仕様の設備をお楽しみに♪
一人暮らしでも、二人暮らしでも戸建てに住みたい!!そんな方に是非見ていただきたい。
小さいお家だからこそ自分の好きな空間で贅沢な時間を満喫できる暮らしを始めてみませんか?
物件詳細情報
| 物件名 | 富山市 西大泉(小泉町駅) 2階建 1LDK | 接道 | 南 約6.0m 公道 接面6.6m |
|---|---|---|---|
| 物件種目 | 新築一戸建て | 間口 | 約6.6m |
| 価格 | 32,800,000円 | 地目 | 宅地 |
| 所在地 | 富山県富山市西大泉14-8 | 現況 | 2025年12月5日完成 |
| 電気 | 〇 | 築年月 | 2025年12月5日 |
| ガス | 都市ガス | 構造 | 木造 |
| 上水道 | 〇 | 最寄り駅・バス停 | 富山地鉄富山市内線 / 小泉町駅 徒歩9分 富山地鉄不二越上滝線 / 大泉駅 徒歩9分 富山地鉄富山市内線 / 堀川小泉駅 徒歩11分 |
| 下水道 | 〇 | 建物面積(㎡) | 68.72m² |
| 古井戸 | - | 専有面積(㎡) | |
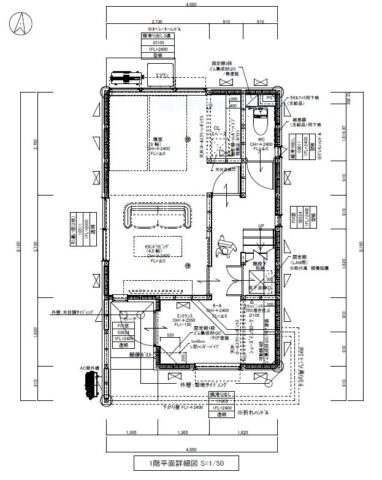
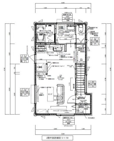
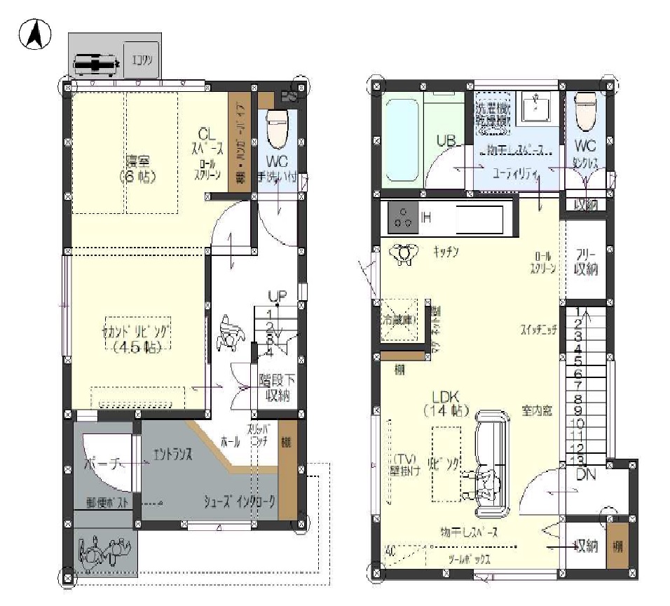
| 学校区 | 堀川小学校、堀川中学校 | 間取 | 1LDK/LDK 14 洋 10.5 (間仕切り設置で2LDKに改装可能) |
| 引渡し | ご相談 | 総戸数 | 1戸 |
| 取引態様/形態 | 売主 | 管理費 | |
| 土地面積(㎡) | 90.37m²(実測) | 修繕積立費 | |
| 用途地域 | 2種中高 | 駐車場 | 駐車場2台分 |
| 建ぺい率 | 60% | 管理業者 | |
| 容積率 | 200% | バルコニー方面 | バルコニーなし ※洗面脱衣室にガス衣類乾燥機「乾太くん」設置 |
| 法令上の制限 | - | 主要採光面 | 南 |
担当者おすすめポイント!
気になる建物設備仕様概要/ココうち西大泉仕様
☆樹脂サッシ・遮熱Low-e複層ガラス・2F 室内窓
☆玄関ドア(電子錠ポケットキー)
☆Toolboxアイアンハンガーパイプ設置(エントランス・LDK・ユーティリティ)
☆I型システムキッチン(IHコンロ)
☆ビルドイン食器洗浄乾燥機
☆2F ガス衣類乾燥機(乾太くん)標準装備
☆1F 手洗い付トイレ・2F タンクレストイレ
☆壁掛けTV対応仕様
☆リビングエアコン1台(200V 暖房強化プレミアムモデル)
☆敷地内2台駐車可
備考
主要採光面:南向き
新築の設計図書あり
BELS/省エネ基準適合認定/エネルギー消費性能★4つ、断熱性能★6つ
令和7年建築基準法改正/新耐震基準、新省エネ基準!より安心、安全にお過ごしいただけます。
建築基準法改正2025年対応物件です。
◎充実の保証内容
・あんしん住宅瑕疵担保保証 10年
・地盤保証 20年

.jpg)































